Espace propriétaire
fr
Se connecter
Se connecter

Votre recherche

Vendu
Vérines (17540)

7 pièces - 172 m²

Vaste ensemble immobilier à 15 minutes des portes de LA ROCHELLE

Ref : 1 - Q - F - V
A propos de ce bien

VERINES - À seulement 15 minutes des portes de LA ROCHELLE, Simons Immobilier vous présente en exclusivité cette vaste propriété familiale, nichée sur un terrain de plus de 1800 m², offrant un charme fou.

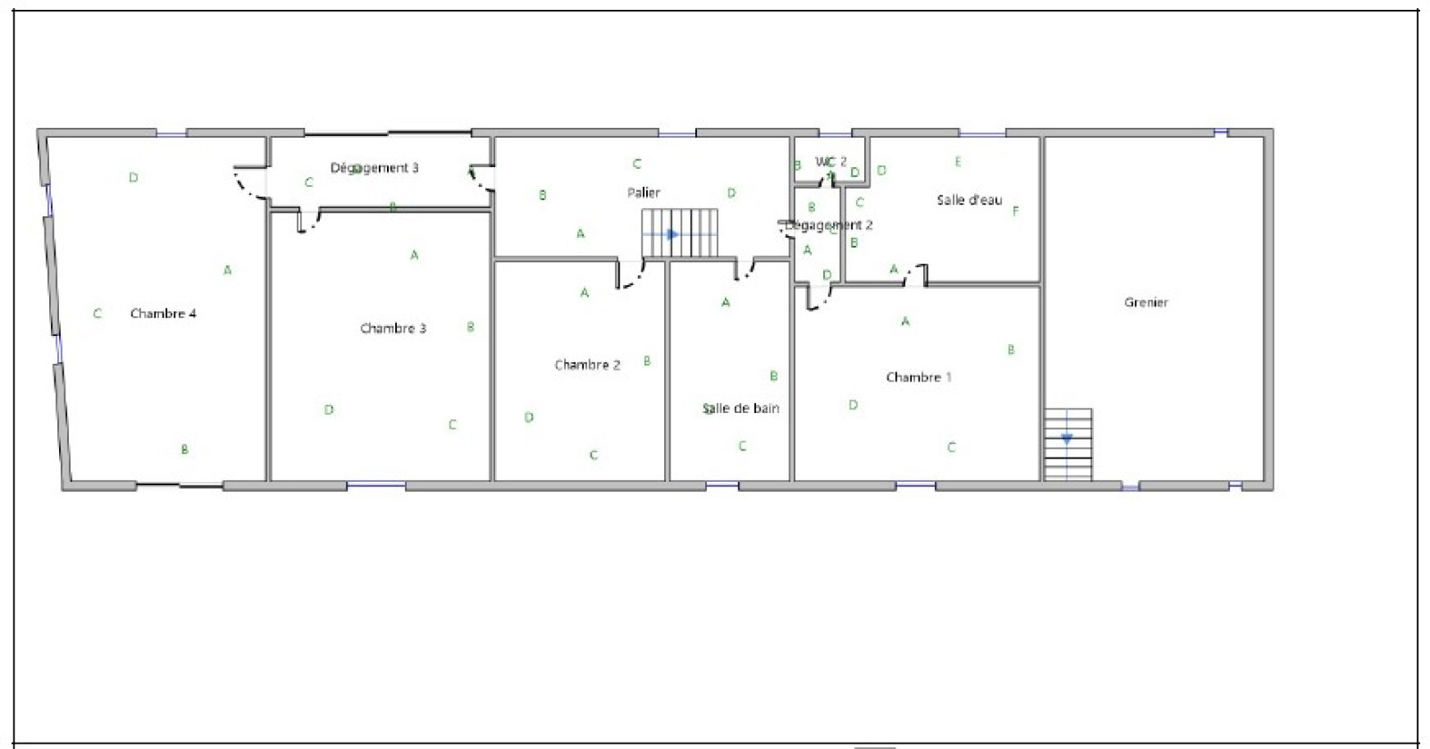
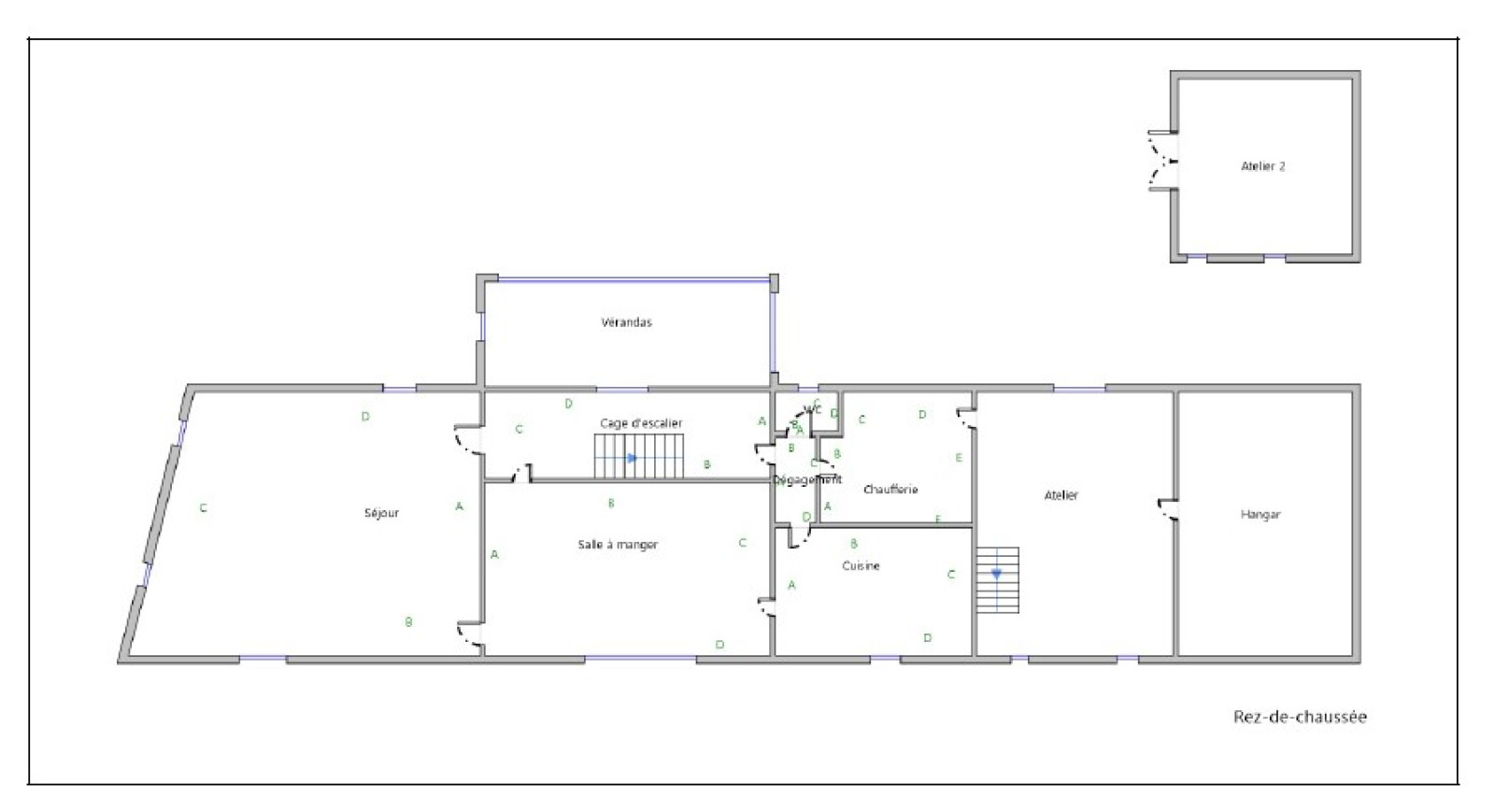
Située plus précisément à FONTPATOUR, cette opportunité se compose d'une maison principale de 7 pièces, dont 4 chambres, nécessitant de nombreux travaux de rénovation. En complément, un atelier attenant d'environ 80 m², facilement aménageable, un hangar de 80 m² et une annexe de 45 m² viennent enrichir l'ensemble et offrir encore plus de possibilités.

Avec ses volumes généreux et ses nombreuses dépendances, cette propriété est idéale pour divers projets : que vous soyez entrepreneur, marchand de biens, ou un particulier passionné par la rénovation de bâtisses anciennes, les possibilités sont infinies.

Ne laissez pas passer cette occasion unique de concrétiser vos projets !


Découvrez la vidéo de cette propriété sur notre site internet :

https://www.simonsimmobilier.fr/vente/14-verines/maison/t7/20-vaste-ensemble-immobilier-a-15-minutes-des-portes-de-la-rochelle/

Restant à votre entière disposition pour de plus amples renseignements.



Descriptif de ce bien
Général
Code postal 17540
surface terrain 1 800 m²
Surface loi Carrez (m²) 172 m²
Nombre de chambre(s) 4
Nombre de pièces 7
Détails
Nb de salle d'eau 2
Année de construction 1930
Energie
DPE GES
Contacter pour ce bien
L'agence
Téléphone 06 64 85 89 55
Adresse
33 rue Jean Bart 17440 Aytré

* Champ obligatoire

Les informations recueillies sur ce formulaire sont enregistrées dans un fichier informatisé par La Boite Immo agissant comme Sous-traitant du traitement pour la gestion de la clientèle/prospects de l'Agence / du Réseau qui reste Responsable du Traitement de vos Données personnelles. La base légale du traitement repose sur l'intérêt légitime de l'Agence / du Réseau. Elles sont conservées jusqu'à demande de suppression et sont destinées à l'Agence / au Réseau. Conformément à la loi « informatique et libertés », vous disposez des droits d’accès, de rectification, d’effacement, d’opposition, de limitation et de portabilité de vos données. Vous pouvez retirer votre consentement à tout moment en contactant directement l’Agence / Le Réseau. Consultez le site https://cnil.fr/fr pour plus d’informations sur vos droits. Si vous estimez, après avoir contacté l'Agence / le Réseau, que vos droits « Informatique et Libertés » ne sont pas respectés, vous pouvez adresser une réclamation à la CNIL. Nous vous informons de l’existence de la liste d'opposition au démarchage téléphonique « Bloctel », sur laquelle vous pouvez vous inscrire ici : https://www.bloctel.gouv.fr Dans le cadre de la protection des Données personnelles, nous vous invitons à ne pas inscrire de Données sensibles dans le champ de saisie libre.
Ce site est protégé par reCAPTCHA, les Politiques de Confidentialité et les Conditions d'Utilisation de Google s'appliquent.

Découvrir nos outils