Espace propriétaire
fr
Se connecter
Se connecter

Votre recherche

Exclusivité
Coup de coeur
Angoulins (17690)

4 pièces - 83,33 m²

Simons Immobilier : maison comme neuve 4 pièces 3 chambres à Angoulins

349 900 €
Ref : SP - 4impdT - Ang
A propos de ce bien

Maison familiale récente – Angoulins-sur-Mer (17)

Située dans la commune très recherchée d’Angoulins-sur-Mer, à seulement quelques minutes de La Rochelle, cette maison récente construite en 2017 offre un cadre de vie idéal entre mer et ville. Angoulins séduit par son ambiance conviviale, ses commerces, ses écoles et son accès direct au littoral.

Une maison moderne, fonctionnelle et en parfait état

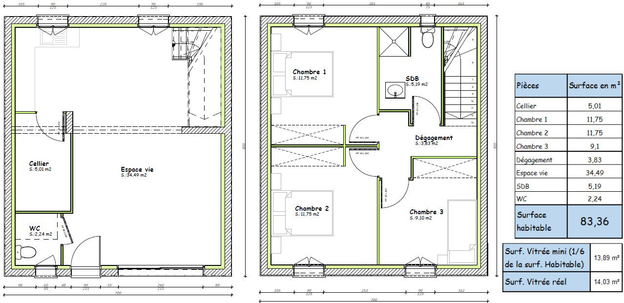
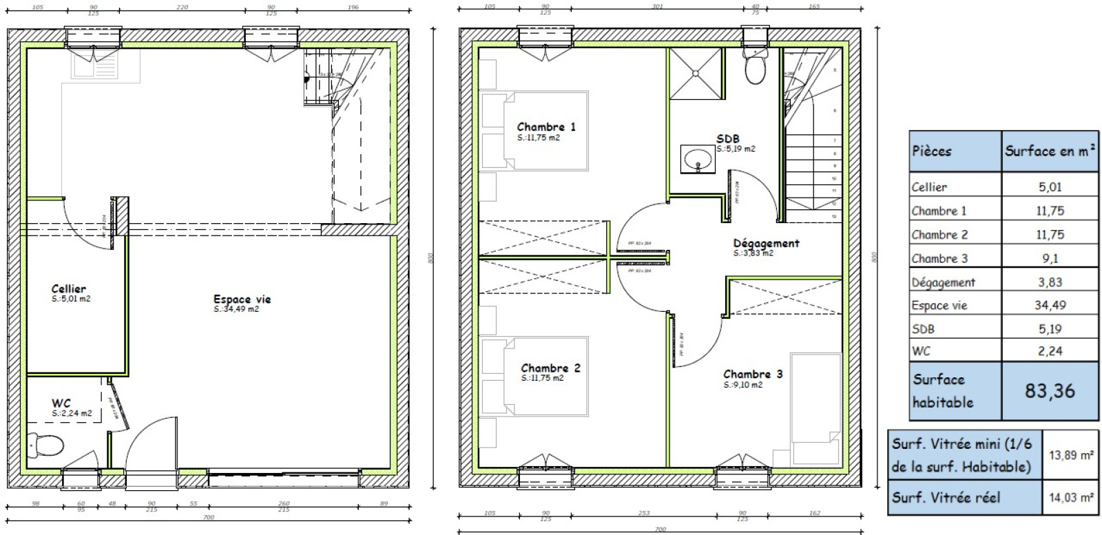
Au rez-de-chaussée, vous découvrirez :

  • Une entrée accueillante,

  • Une belle pièce de vie lumineuse avec salon, salle à manger et cuisine ouverte aménagée et équipée,

  • Un cellier attenant, pratique pour le rangement,

  • Des WC séparés.

À l’étage, le palier dessert :

  • Trois chambres confortables, toutes équipées de grands placards intégrés,

  • Une salle de bains moderne.

Les extérieurs

  • Une terrasse de 45 m², sans vis-à-vis, idéale pour profiter des beaux jours en toute intimité,

  • Deux places de stationnement privatives,

  • Un atelier / garage indépendant de 17,9 m², parfait pour le stockage ou le bricolage.

Les atouts

  • Maison clé en main, aucun travaux à prévoir,

  • Environnement calme et recherché,

  • Proximité immédiate des commodités et des axes principaux,

  • Très faible consommation énergétique,

  • Secteur prisé entre océan et agglomération rochelaise.

Une opportunité rare à Angoulins-sur-Mer
Idéale pour une famille ou un projet de résidence principale.

À visiter sans tarder !
Contactez Simons Immobilier pour plus d’informations ou organiser une visite.

Descriptif de ce bien
Général
Code postal 17690
surface terrain 161 m²
Surface loi Carrez (m²) 83,33 m²
Nombre de chambre(s) 3
Nombre de pièces 4
Etage 1
Vue Jardin
Détails
Nb de salle de bains 1
Nb de salle d'eau 1
Cuisine Américaine
Mode de chauffage Gaz
Type de chauffage Au sol
Format de chauffage Individuel
Nombre de garage 1
Exposition Sud
Année de construction 2017
Composition
Rez de chaussée
salon/sejour 35.60 m²

garage 17.9 m²

Etage 1
chambre 11.55 m²

salle de bain 5.3 m²

chambre 11.5 m²

chambre 9.1 m²

Financier
Prix de vente honoraires TTC inclus 349 900 €
Taxe foncière annuelle 1 335 €
Energie
DPE GES
Contacter pour ce bien
L'agence
Téléphone 06 64 85 89 55
Adresse
33 rue Jean Bart 17440 Aytré

* Champ obligatoire

Les informations recueillies sur ce formulaire sont enregistrées dans un fichier informatisé par La Boite Immo agissant comme Sous-traitant du traitement pour la gestion de la clientèle/prospects de l'Agence / du Réseau qui reste Responsable du Traitement de vos Données personnelles. La base légale du traitement repose sur l'intérêt légitime de l'Agence / du Réseau. Elles sont conservées jusqu'à demande de suppression et sont destinées à l'Agence / au Réseau. Conformément à la loi « informatique et libertés », vous disposez des droits d’accès, de rectification, d’effacement, d’opposition, de limitation et de portabilité de vos données. Vous pouvez retirer votre consentement à tout moment en contactant directement l’Agence / Le Réseau. Consultez le site https://cnil.fr/fr pour plus d’informations sur vos droits. Si vous estimez, après avoir contacté l'Agence / le Réseau, que vos droits « Informatique et Libertés » ne sont pas respectés, vous pouvez adresser une réclamation à la CNIL. Nous vous informons de l’existence de la liste d'opposition au démarchage téléphonique « Bloctel », sur laquelle vous pouvez vous inscrire ici : https://www.bloctel.gouv.fr Dans le cadre de la protection des Données personnelles, nous vous invitons à ne pas inscrire de Données sensibles dans le champ de saisie libre.
Ce site est protégé par reCAPTCHA, les Politiques de Confidentialité et les Conditions d'Utilisation de Google s'appliquent.

Découvrir nos outils