Espace propriétaire
fr
Se connecter
Se connecter

Votre recherche

Exclusivité
Nouveauté
La Rochelle (17000)

5 pièces - 115 m²

La Rochelle – Maison à rénover + permis de construire validé (projet 115 m²) – Secteur Bernard-Palissy

450 000 €
Ref : MM 25 BR LR 2
A propos de ce bien

La Rochelle – Maison à rénover + permis de construire validé (projet 115 m²) –Ecole : Bernard-Palissy – 250 000 € FAI

Au calme d’un quartier résidentiel très recherché pour sa sectorisation Bernard-Palissy, Simons Immobilier présente en exclusivité une opportunité rare : une maison des années 60 d’environ 65 m² à rénover, sur parcelle de 230 m² avec jardin clos et stationnement. L’adresse séduit autant les familles en quête d’une bonne école de quartier que les acquéreurs souhaitant bâtir un vrai projet de vie à La Rochelle.

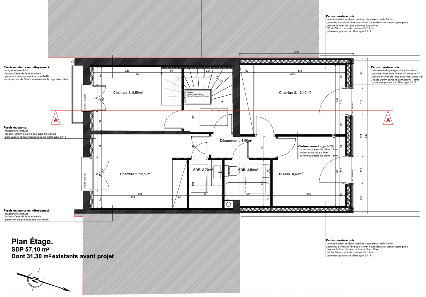
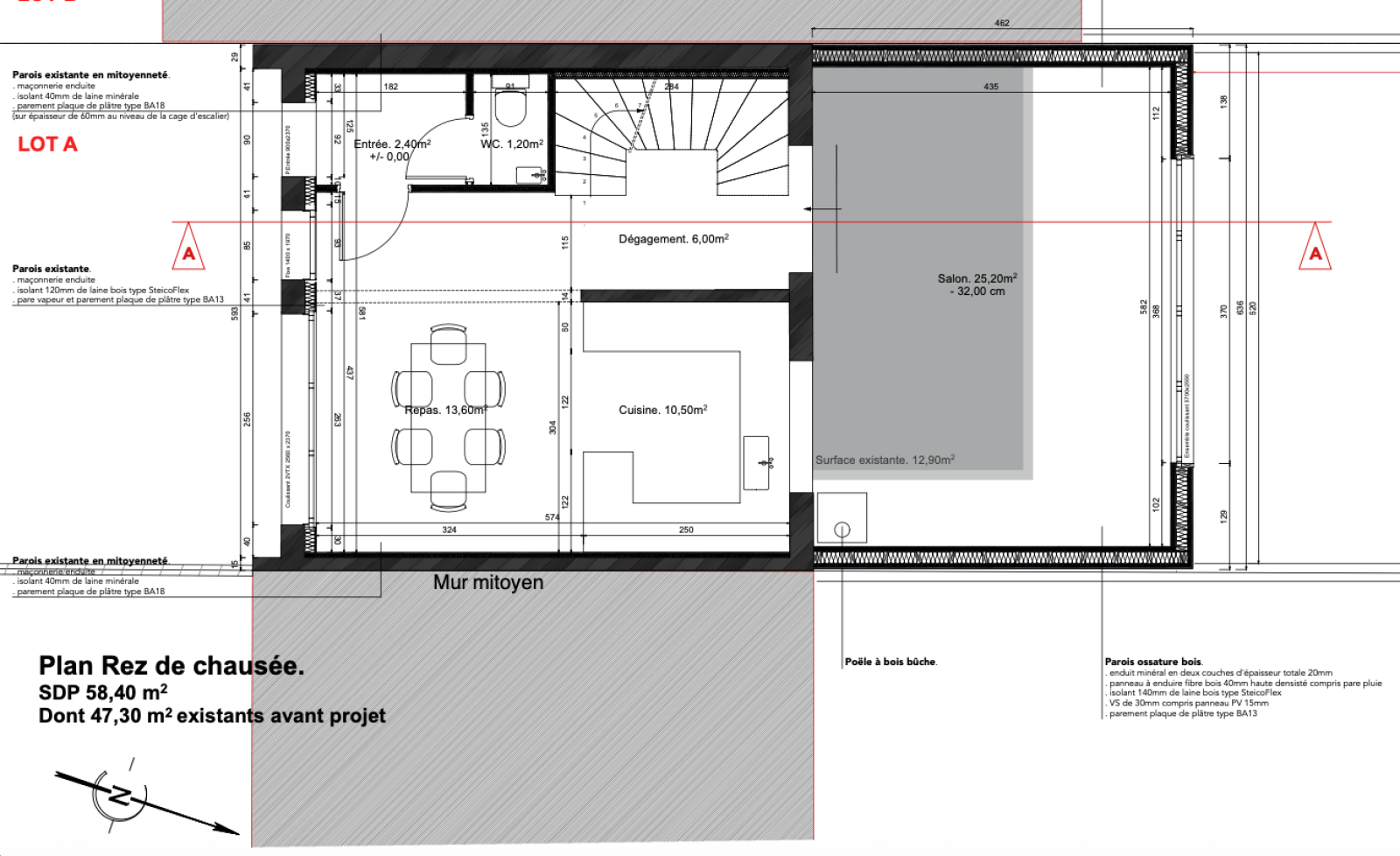
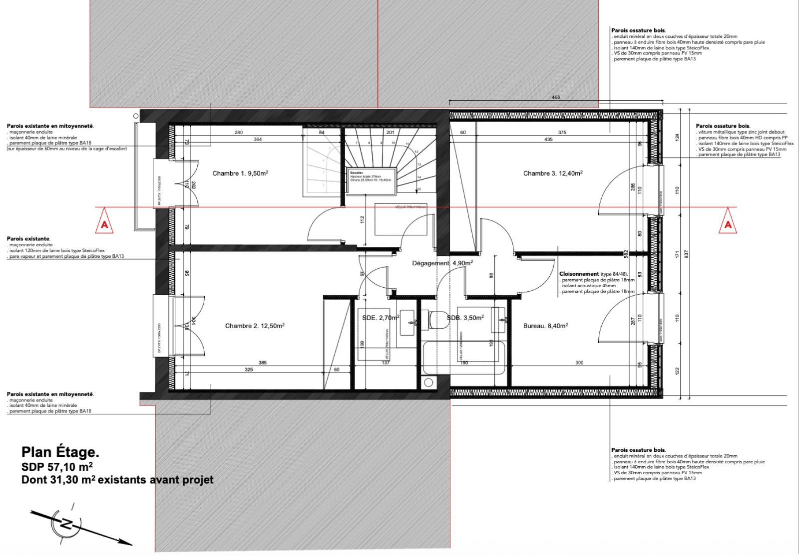
Atout majeur, un permis de construire déjà accordé permet d’agrandir et de repenser la maison en une familiale contemporaine d’environ 115 m² habitables : au rez-de-chaussée, entrée avec WC, cuisine ouverte conviviale, salle à manger lumineuse et vaste salon sur le jardin ; à l’étage, quatre chambres dont une suite parentale, une salle de bains avec WC et une salle d’eau supplémentaire. Lumière, volumes et fonctionnalité au quotidien, à deux pas de l’école Bernard-Palissy.

Le budget travaux est estimé entre 200 000 et 220 000 € (selon prestations), pour créer une maison moderne et spacieuse, parfaitement adaptée à la vie de famille et aux attentes du secteur. Prix en l’état : 250 000 € FAI.

Idéal premier achat avec projet, rénovation patrimoniale ou investissement familial : calme, jardin, permis validé et emplacement premium Bernard-Palissy.

Descriptif de ce bien
Général
Code postal 17000
surface terrain 230 m²
Surface loi Carrez (m²) 115 m²
Nombre de chambre(s) 4
Nombre de pièces 5
Nombre de niveaux 1
Vue Jardin
Détails
Nb de salle de bains 1
Nb de salle d'eau 1
Cuisine Américaine
Mode de chauffage Autre
Type de chauffage Autre
Format de chauffage Individuel
Murs mitoyens 2
Exposition Sud
Terrain piscinable OUI
Terrain arboré OUI
Composition
Etage 1
chambre 9.50 m²

chambre 12.50 m²

chambre 12.40 m²

chambre 8.40 m²

salle de bain 2.70 m²

annexe 4.90 m²

salle de bain 3.50 m²

Rez de chaussée
salon/sejour 25.20 m²

salon/sejour 13.60 m²

cuisine 10.50 m²

entrée 8.40 m²

WC 1.20 m²

Financier
Prix de vente honoraires TTC inclus 450 000 €
Prix de vente honoraires TTC exclus 437 000 €
Honoraires TTC à la charge acquéreur 2,97 %
Taxe foncière annuelle 1 270 €
Energie
DPE GES
Contacter pour ce bien
L'agence
Téléphone 06 64 85 89 55
Adresse
33 rue Jean Bart 17440 Aytré

* Champ obligatoire

Les informations recueillies sur ce formulaire sont enregistrées dans un fichier informatisé par La Boite Immo agissant comme Sous-traitant du traitement pour la gestion de la clientèle/prospects de l'Agence / du Réseau qui reste Responsable du Traitement de vos Données personnelles. La base légale du traitement repose sur l'intérêt légitime de l'Agence / du Réseau. Elles sont conservées jusqu'à demande de suppression et sont destinées à l'Agence / au Réseau. Conformément à la loi « informatique et libertés », vous disposez des droits d’accès, de rectification, d’effacement, d’opposition, de limitation et de portabilité de vos données. Vous pouvez retirer votre consentement à tout moment en contactant directement l’Agence / Le Réseau. Consultez le site https://cnil.fr/fr pour plus d’informations sur vos droits. Si vous estimez, après avoir contacté l'Agence / le Réseau, que vos droits « Informatique et Libertés » ne sont pas respectés, vous pouvez adresser une réclamation à la CNIL. Nous vous informons de l’existence de la liste d'opposition au démarchage téléphonique « Bloctel », sur laquelle vous pouvez vous inscrire ici : https://www.bloctel.gouv.fr Dans le cadre de la protection des Données personnelles, nous vous invitons à ne pas inscrire de Données sensibles dans le champ de saisie libre.
Ce site est protégé par reCAPTCHA, les Politiques de Confidentialité et les Conditions d'Utilisation de Google s'appliquent.

Découvrir nos outils